IBR-9AR Bronze Controllable Feed Check Valve

Right Angle, Screwed (IBR Approved)
Photo Not Available
  • Application
  • Water
  • Steam

Product Description HSN : 84813000

Product : ‘SANT’ Bronze Controllable Feed Check Valve
Type of Pattern : Right Angle
Body Material cum Standard : Bronze IBR 282(a)(iv) Gr.B
Description : Screwed in Bonnet, OS Yoke Type , Rising Stem (15mm to 32mm)
Bolted Bonnet, OS Yoke Type, Rising Stem (40mm to 50mm)
Type of Seat : Renewable Seat
Type of Disc : Renewable Disc
Trim : SS AISI-410
Gland Packing : Expanded Pure Flexible Graphite
End Details : Screwed female BSP Taper threads to BS 21


Testing & Certification

Body Test Pressure : 500 Psig.Hyd.
Seat Test Pressure : 500 Psig. Hyd. & 250 Psig. Steam
Working Pressure : Max.BOP 250 Psig.(17.58Kg/cm²)
Maximum Working Temperature: 225°C (435°F)

Test Certificate in Form lll-C as per IBR is furnished with every supply.

Materials

Components Materials Specifications
Body, Bonnet, Check Nut & Gland Bronze IBR 282(a)(iv) Gr.B
Body Seat Ring, Valve Disc & Stem Stainless Steel AISI-410
Handwheel Cast Iron IBR 86 to 93 Gr.A
Gland Packing Expanded Pure Flexible Graphite
Fasteners, Washer & Nut for Handwheel Mild Steel

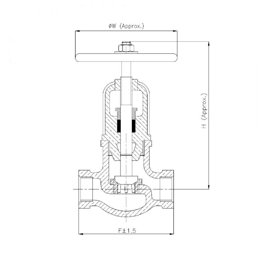
Dimensions (in mm)

Nominal Size Nominal Size (Inches) F H (Approx.) ∅W (Approx.)
15 1/2 41±1.5 123 70
20 3/4 48±1.5 127 70
25 1 57±1.5 146 90
32 1.1/4 67±1.5 170 100
40 1.1/2 76±1.5 178 127
50 2 89±1.5 200 144

Notes
1. Product images are for illustration purposes only. Actual product may vary.
2. Actual dimensions may change over time, due to continual design improvements. Please confirm before placing order.

Other Products

Start WhatsApp Chat Start WhatsApp Chat
Valves

Valves

Water Meters

MS Forged Pipe Fittings

Fittings

Water Meters

Valves

DI Grooved Fittings (UL/FM)

Water Meters

DI Screwed Fittings (UL/FM)

Fittings

Composite Pipes & Fittings

Site Credits : Seigospace